
Kinma Valley
Client:
Lendlease Communities
Sustainable community living
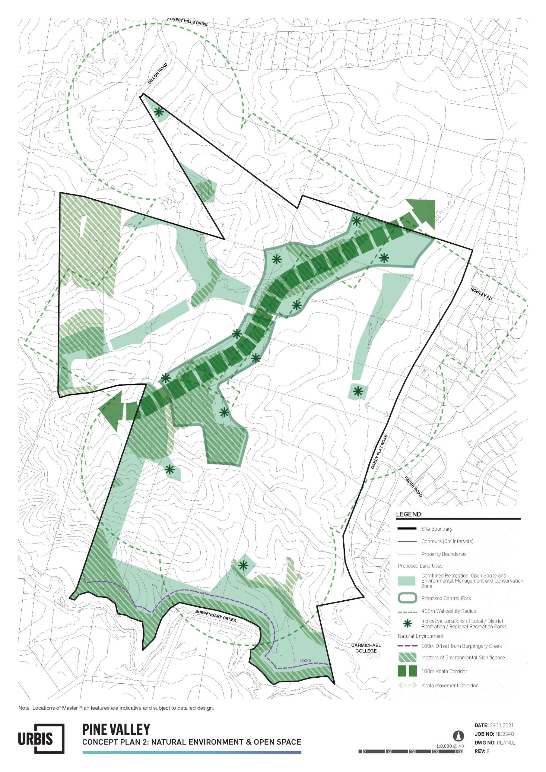
Kinma Valley is not your average housing development. This new community in Morayfield is designed with environmentally sustainable initiatives at its core, utilising the undulating landscape to create a distinctive, nature-focused environment with over 30% of the site dedicated to open space. With challenging environmental constraints, such as topography, koala habitat, regulated vegetation, and flooding, the design team saw these as opportunities to create a unique community that not only preserves the environment but enhances it.


Consultation is key
Key project pillars – united, restorative, reimagined, and natural and open. These formed the foundation for the master plan and open space focus. Lendlease and Urbis undertook unparalleled significant community, environmental and Council consultation from day one of the project, ensuring the seamless success of the pathway for the project – considering it was zoned rural when it began in 2018 (approved for urban development in Feb 2022).
Urbis lead the urban design and landscape architecture for Kinma Valley and have worked in partnership with Lendlease to ensure the best possible vision, principles, strategy, concept design, and detailed design were realised. The Urbis Property & Economics team undertook an economic strategy for the development to test the need and purpose of this project within the existing housing supply in the region.
The economic assessment highlighted the benefits a master planned community can have on the region in the delivery of consistent and diverse housing, employment opportunities and key amenities.
Nature-based leisure
At the heart of the community lies the Central Park, a 31-hectare major selling point that offers an abundance of amenities and recreation activities to an equivalent size of almost three Brisbane South Banks; an unmatched feature in the region. The park is crucial to attracting people to the community and creating an amazing lifestyle. The site responsive park creates a unique open space offering that combines multiple local parks woven together by the natural environment.
With themes of ‘community, discovery, and nature play’, the Central Park and surrounding network of green space fosters nature-based leisure, walking, education, biking and play facilities for all ages.
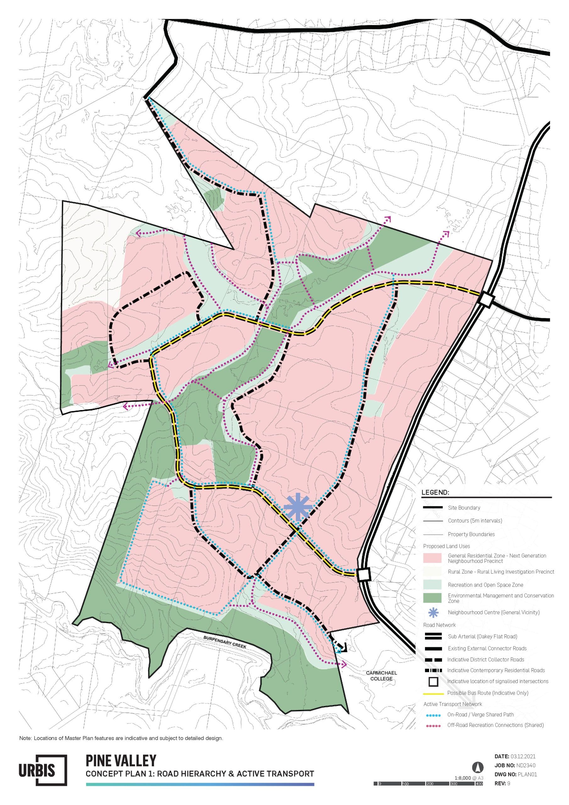
“ Our role on Kinma Valley was to reimagine a sustainable new community, nestled in the trees that put people and place at the forefront of our design. A naturally stunning landscape, our vision was to deliver an integrated network of walking paths and cycle paths to connect residents back to nature.
A lasting legacy
Situated at Kinma Valley’s highest point and with views of the Glasshouse Mountains will be the Neighbourhood Hub, the community’s vibrant heart. Re-purposing an existing homestead as one of the main buildings for the Hub demonstrates the authentic approach taken for the project and the desire to honour the existing charm of the site and leave a lasting legacy.

Topography also leads the design to ensure an efficient layout which minimises earthworks, assists with drainage, and connects people to amenities and recreation hubs.
Kinma Valley will see more than 2000 new dwellings in the Morayfield / Narangba area. Under the Next Generation Zone in MBRC, the focus will be broad product diversity ranging from small attached terraces through to large rural lots to offer something for everyone and every lifestyle. The master plan focuses on creating smaller pockets of neighbourhoods to ensure a sense of community is established within the larger development. The streets and pathways have a clear hierarchy, making way-finding easy, and the journey is just as important as the destination.
A key part of the master plan is creating ‘place elements’ within the street network – to increase the scope for tree canopy and shade within the traditional streetscape by widening landscape areas in verges in strategic locations.


Kinma Valley is not just a place to live; it’s a place to connect with the community, enjoy nature, and establish a sense of belonging.

















